
Remodelación y desarrollo de una casa pequeña con altillo; dentro de las posibilidades económicas el arquitecto hace cambios en planos de planta y de materiales de construcción de una antigua y deteriorada estructura para proporcionar una mejor calidad de vida a sus ocupantes.
Fachadas de la pequeña vivienda

La vivienda emergente tiene 4.80 m de frente por 20.00 m de profundidad, presentaba problemas físicos graves en la materialidad por el paso del tiempo.
Con un presupuesto limitado el estudio de arquitectura propone reutilizar parte existente de la construcción y por ello se reciclo las instalaciones sanitarias, tres de cuatro paredes de ladrillo, techo y el cuarto de baño.
La fachada exterior se mantiene con una puerta de ingreso principal cubierta por planchas de policarbonato, el portón del garaje así como los muros del cerco perimétrico se le dio una mano de pintura de color blanco para mejorar estéticamente.

Pasos para el trabajo de remodelación planteado dentro de los parámetros de presupuesto:
- El primer paso fue trabajar con el techo a dos aguas compuesto por planchas de chapa metálica.
- El segundo paso fue mejor las condiciones térmicas interiores por lo cual se eleva la altura de la vivienda, permitiendo aumentar el volumen del aire generando un ambiente cómodo durante la mayor parte del día.
- Se proponen que la pared frontal y posterior sea con planchas translúcidas de policarbonato reciclado aprovechando la luz natural en el día y en la noche la iluminación interior se proyecte hacia el exterior.

El diseño interior tenía que ajustarse al actual forma de vida del usuario; la estructura se trabajó con tubos cuadrados de hierro formando un marco.

El mobiliario ha sido retocado y mejorado, pero mantiene la pátina del paso del tiempo que le da originalidad a estos objetos.
Espacios interiores de la casa

Los detalles de la vivienda son rústicos, los muros lucen igual en el interior como en el exterior, el piso es de concreto pulido, puertas y ventanas son de materiales reutilizados; destaca la pared de policarbonato translúcido permitiendo tener el interior bien iluminado y dando la sensación de mayor amplitud.

Una sencilla escalera de madera conduce directamente hacia el altillo donde se encuentran el dormitorio, aquí se propone una ventana superior para mayor ingreso de luz natural.
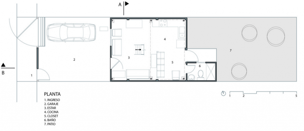
Planos de la pequeña y económica casa de 96 metros cuadrados

En la planta del primer nivel se propone 1. el ingreso principal, 2. garaje con un pequeño patio, 3. estar con las escaleras en el centro, 4. una pequeña cocina, 5. closet, 6. cuarto de baño, 7. patio posterior; todos los ambientes están bien iluminados y ventilados.

En el remodelado altillo se plantea un dormitorio con dos camas, tiene barandas como cerramiento para mayor seguridad.
Diseño y Fotos: Fábrica Nativa Arquitectura
Fuente: Archdaily
Área: 96.0 m2